Mieszkanie III

Year
2024
Location
New York
Type
Residential
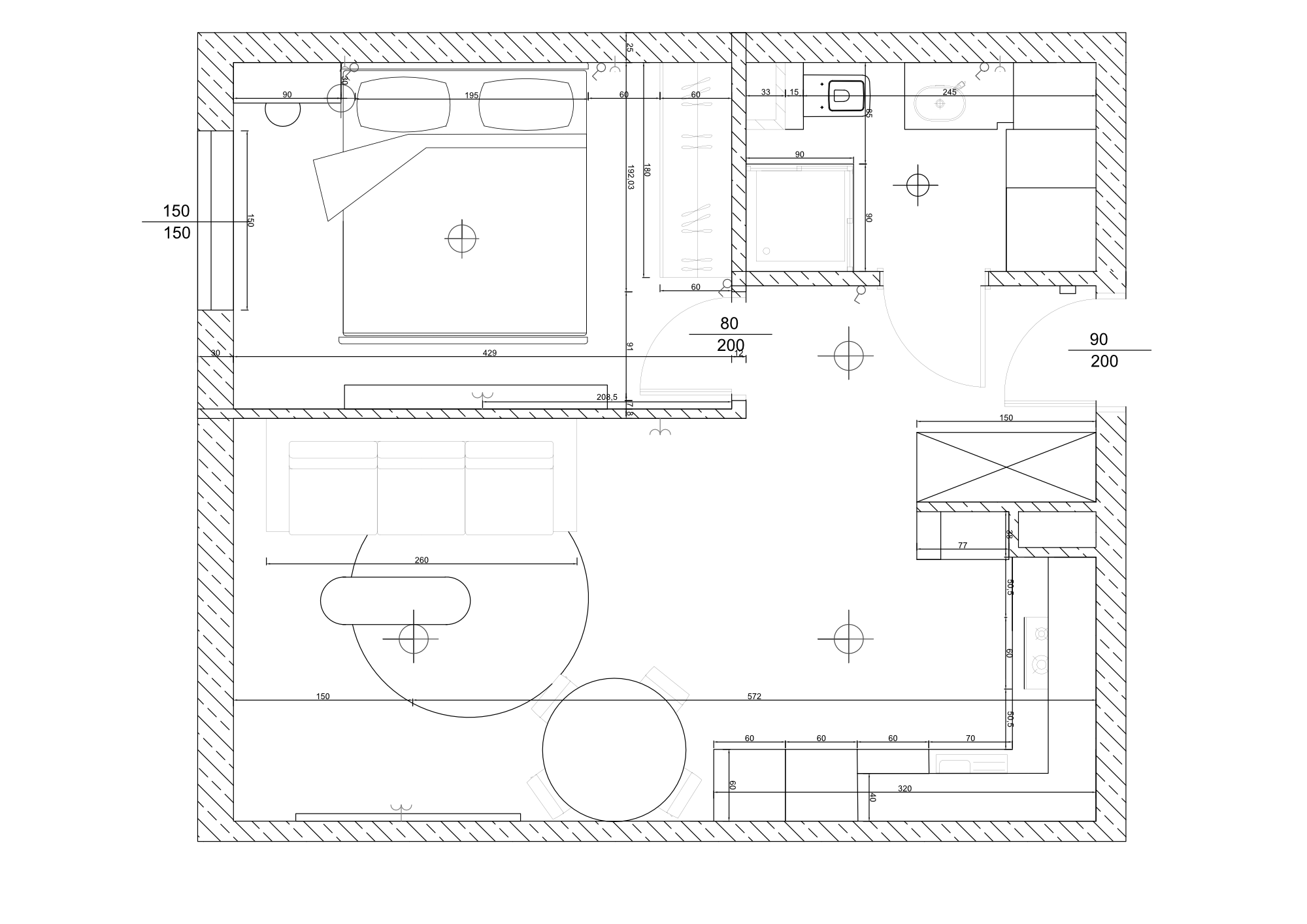
Area
2814 Sq Ft
Services
Construction
Interior design
Bespoke furnishings

A charming four-storey summer house in New York, thoughtfully designed for a young family of four

The brief

This four-storey Victorian townhouse in the heart of New York is home to a young family of four. The design celebrates the property’s rich period character, enhancing its original features with thoughtful, timeless updates. Highlights include a classic Shaker kitchen, a striking entrance hallway (perhaps our favourite to date!), inviting reception rooms layered with pattern and warmth, and a luxurious master suite with a roll-top bath and walk-in shower. The top floor houses two enchanting children’s bedrooms.

Each level tells its story, blending Victorian charm with modern comforts to reflect the family’s unique style and spirit: a truly magical home—and a joy to bring to life.

Scope of Work

Complete design concept, mood boards, floor plans, and joinery drawings. Furniture and fixture sourcing. Renovation completed by Son & Son in collaboration with our trusted trades and partners.

PHOTO CREDIT

Carmen Lopes

Natural textures, such as wood, stone, and woven materials, combined with rich, deep blue tones, create a harmonious flow that seamlessly connects the various spaces throughout the home. This thoughtful combination not only enhances visual continuity but also evokes a sense of calm and cohesion, making each room feel like an intentional extension of the next.